watermark logo

Leave a Message

By providing your contact information to DEN Property Group LLC, your personal information will be processed in accordance with DEN Property Group LLC's Privacy Policy. By checking the box(es) below, you consent to receive communications regarding your real estate inquiries and related marketing and promotional updates in the manner selected by you. For SMS text messages, message frequency varies. Message and data rates may apply. You may opt out of receiving further communications from DEN Property Group LLC at any time. To opt out of receiving SMS text messages, reply STOP to unsubscribe.

Thank you for your message. We will be in touch with you shortly.

Explore Our Properties

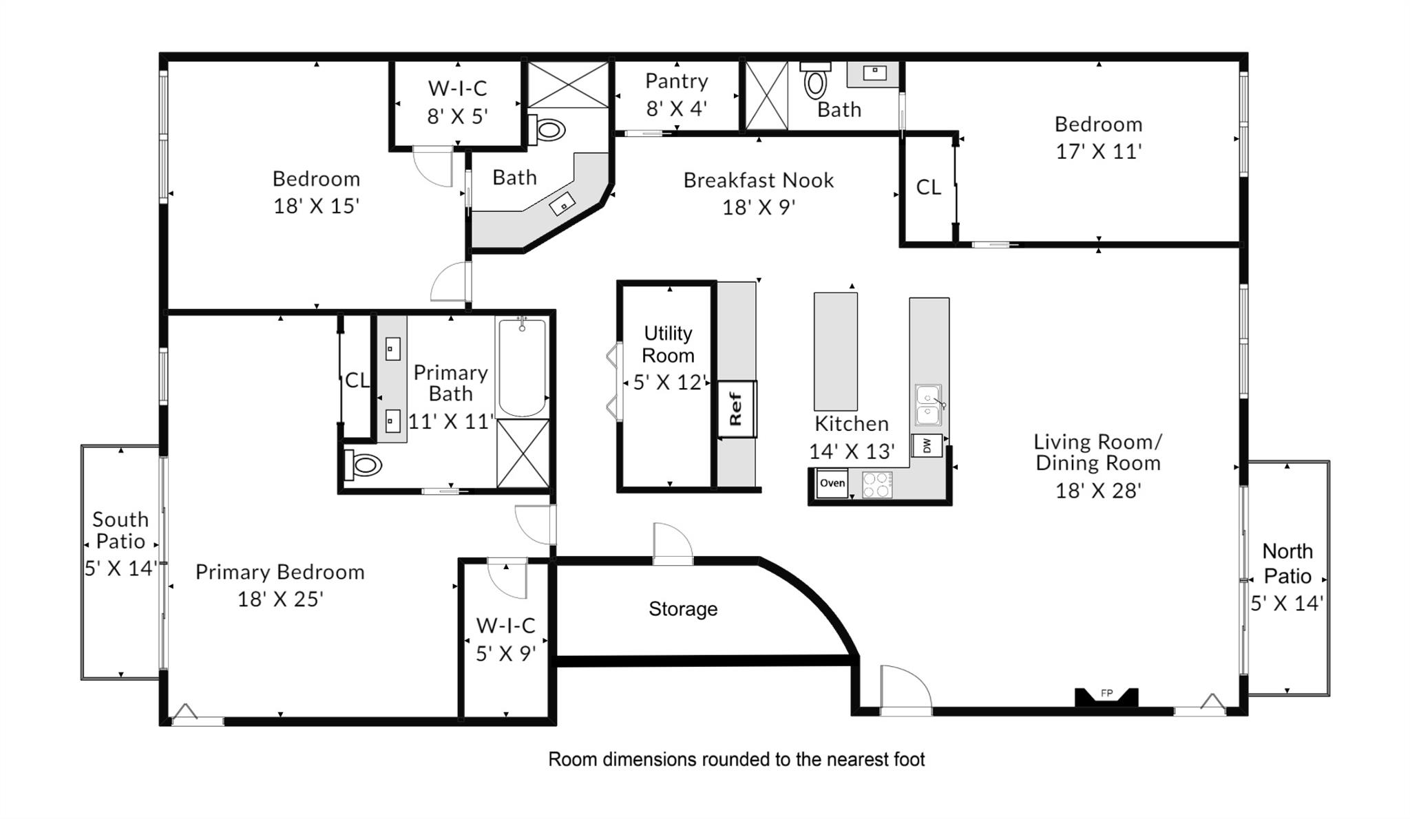
Property Description

***A Rare Downtown Retreat with Lady Bird Lake Views -- Priced Under $1M*** Refined Living with Front-Row Views of Lady Bird Lake & Downtown Austin; Residence No. 8C1 is an exquisite 3-bed, 3-bath residence with 2 private balconies that offers stunning city and Lady Bird Lake views, paired with unparalleled access to Austin's most vibrant attractions. *Prime Location* Situated near the highly sought-after Rainey Street Neighborhood, but away from the hustle and bustle. Steps away from the world-renowned Lady Bird Lake Hike-&-Bike Trail, restaurants, live music & more *Breathtaking Views* Enjoy panoramic views of Lady Bird Lake & downtown Austin from your two private balconies...perfect for morning coffee or evening relaxation *Spacious Layout* This residence boasts an open floor plan larger than most condominiums in downtown Austin with a generous living and dining area...ideal for entertaining guests or cozy family gatherings *Gourmet Kitchen* Benefit from a fully-equipped kitchen featuring a large island, breakfast nook, stainless steel appliances, granite countertops, and ample custom cabinet space *Master Bedroom Retreat* The primary bedroom is a true sanctuary, featuring a private terrace with stunning views of Lady Bird Lake. A convenient space by the window offers versatility as an office desk area, dressing space, or workout spot, all while enjoying the refreshing lake view *Extensive Amenities* Experience resort-style amenities including two pools (indoor & outdoor), hot tub, racquetball court, lounges, game room, snack lounge, gym, convenient parking & more...the perfect blend of quiet luxury and an active lifestyle in the heart of Austin *Very Walkable & Biker's Paradise* Walk Score of 79 and Bike Score of 95 (Source: WalkScore.com) Don't miss out on this incredible opportunity to own a spacious condo with stunning lake & city views, excellent resale value, and the best of downtown living in the vibrant city of Austin.

Overview

Property Status
Active Under Contract
Lot Size
2,073.46 Sq.Ft.
MLS ID
7483899
Property Type
Condo
Year Built
1983

Features & Amenities

Neighborhood
Downtown Austin
Water Frontage
None
View Description
City, Hill Country, Lake, River
Stories
1
Garage Spaces
2.0
Water Source
Public
Utilites
Electricity Available, Phone Available
Pool
Heated, In Ground, Indoor, Pool/Spa Combo
Roof
See Remarks
Lot Features
None
Parking
Reserved
Heat Type
Central, Electric
Air Conditioning
Central Air
Fireplace
Living Room
Appliances
Built-In Oven(s), Dishwasher, Disposal, Dryer, Electric Cooktop, Microwave, Refrigerator, Washer
Other Interior Features
Ceiling Fan(s), Stone Counters, Double Vanity, Kitchen Island, Multiple Dining Areas, No Interior Steps, Open Floorplan, Primary Bedroom on Main, Soaking Tub, Study/Home Office, Walk-In Closet(s)
Sewer
Public Sewer
Substructure
Slab
Disability Features
None
Other Exterior Features
Balcony
Elementary School
Mathews
Middle School
O Henry
High School
Austin
School District
Austin ISD
Sales Price
$899,000
Real Estate Tax
$18,967/yr
HOA
$1,753/mo

Downloads

40 N Interstate Highway 35 Unit: 8C1

Schedule a Tour

We would love to help you see this beautiful home! As a full-service brokerage, we can help you tour. Please submit an offer, and answer questions about the buying process.

Thank you

for your interest in 40 N Interstate Highway 35 Unit: 8C1, Austin, TX 78701

40 N Interstate Highway 35 Unit: 8C1
Navigate
Downtown Austin

Explore Downtown Austin

read more
40 N Interstate Highway 35 Unit: 8C1
explore in 3d

Mortgage Calculator

Estimate your monthly mortgage payment, including the principal and interest, property taxes, and HOA. Adjust the values to generate a more accurate rate.
$0,000 Your Payment 20 15 65
$0,000 Your Payment

I'm Interested In

40 N Interstate Highway 35 Unit: 8C1

or
  • CallBryan Cady

    License #526188

    (512) 731-7489
  • Follow Us On Instagram