watermark logo

Leave a Message

By providing your contact information to DEN Property Group LLC, your personal information will be processed in accordance with DEN Property Group LLC's Privacy Policy. By checking the box(es) below, you consent to receive communications regarding your real estate inquiries and related marketing and promotional updates in the manner selected by you. For SMS text messages, message frequency varies. Message and data rates may apply. You may opt out of receiving further communications from DEN Property Group LLC at any time. To opt out of receiving SMS text messages, reply STOP to unsubscribe.

Thank you for your message. We will be in touch with you shortly.

Explore Our Properties

Property Description

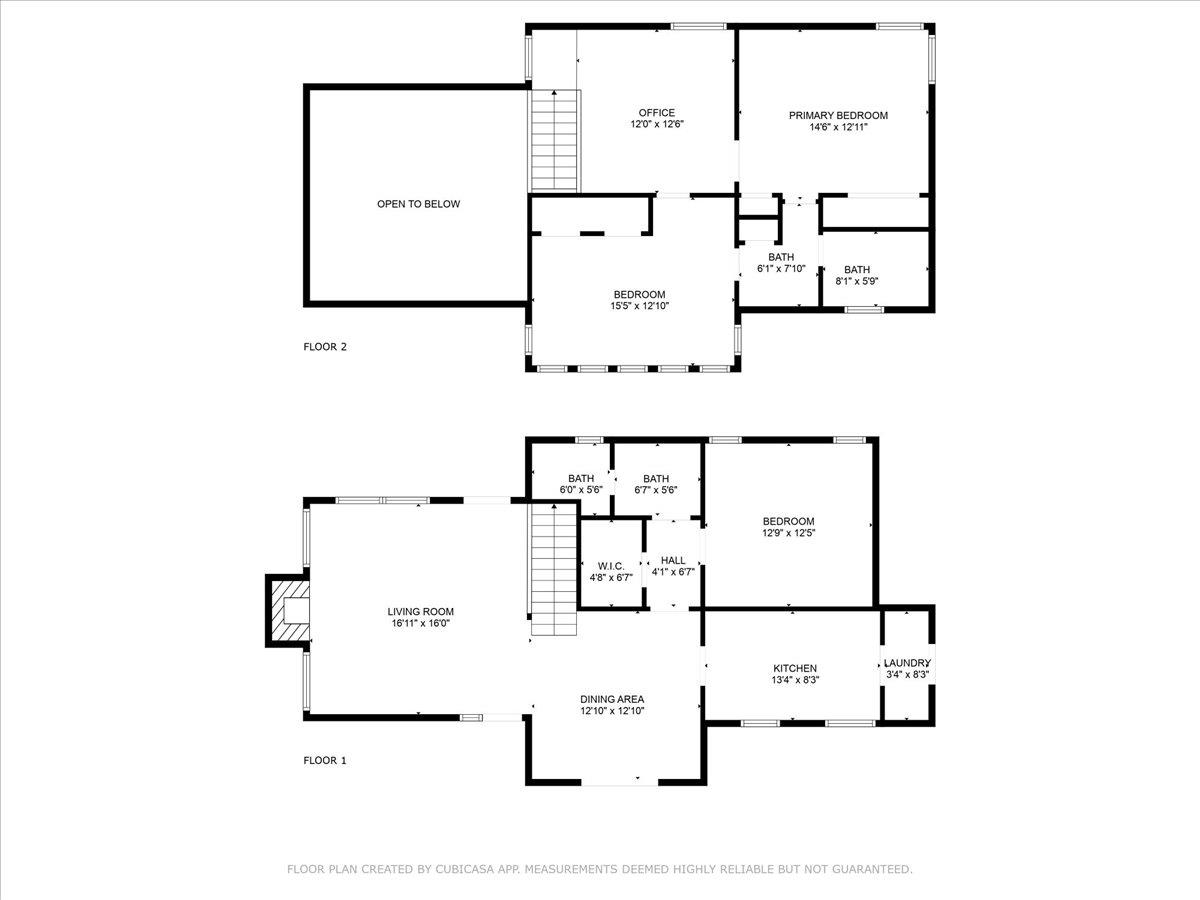
***SIGNIFICANT PRICE IMPROVEMENT, STR-FRIENDLY & A BRAND-NEW ROOF -- PRICED TO SELL! A HIDDEN GEM WHERE PEMBERTON HEIGHTS MEETS BRYKER WOODS*** Tucked behind a white picket fence on Jefferson Street, this light-filled cottage blends classic charm w/ modern livability. Vaulted ceilings soar over a two-story living area, where a functional fireplace is expressed on the home's facade & thoughtful windows add warmth & rhythm. Two private patios, a fully fenced yard & curated landscaping make the home live larger than its square footage suggests. ***ARCHITECTURAL CHARACTER*** The dramatic living space is anchored by a working fireplace & filled w/ natural light. A bonus loft overlooks the living area, offering space for a study, reading nook or creative retreat. Wood floors, natural textures & a soft palette enhance the flow between living, dining & kitchen. The dining area opens to a newly constructed patio ideal for al fresco dining. ***UPGRADES*** Over $33K in new windows (excluding custom vertical entry window) PLUS a front / side patio w/ custom stonework, perfect for entertaining & enhancing curb appeal. Modern updates include the kitchen, outdoor living & interior finishes that elevate comfort & style. ***FUNCTIONAL FLOOR PLAN*** The main-level primary suite features dual closets & serene light. Upstairs, two additional bedrooms are connected by a Jack-and-Jill bath & offer flexibility for guests or work-from-home needs. ***LOCATION & LIFESTYLE*** Located near Shoal Creek Trail, Tiny Boxwoods, Milk & Cookies & Olive & June & zoned to Casis Elementary, O. Henry & Austin High. Easy access to Mopac, UT, downtown & the medical district. ***MOVE-IN READY OR A PERFECT BLANK CANVAS TO HOUSE YOUR DREAMS*** A rare opportunity to own a standalone residence w/ scale, privacy & curated character in one of Central Austin's most treasured enclaves.

Overview

Property Status
Sold
Lot Size
3,920.4 Sq.Ft.
MLS ID
6671043
Property Type
Residential
Year Built
1975

Features & Amenities

Neighborhood
Austin
Water Frontage
None
View Description
None
Stories
2
Water Source
Public
Utilities
Electricity Available, Internet-Cable, Natural Gas Available, Phone Available
Pool
None
Roof
Composition
Lot Features
Sprinkler - Automatic, Sprinkler - Partial, Trees-Large (Over 40 Ft)
Parking
Carport, Covered
Heat Type
Central, Natural Gas
Air Conditioning
Central Air
Fireplace
Living Room, Wood Burning
Appliances
Dishwasher, Disposal, Dryer, Gas Range, Microwave, Oven, Free-Standing Range, Refrigerator, Stainless Steel Appliance(s), Washer
Other Interior Features
See Remarks, Ceiling Fan(s), Beamed Ceilings, High Ceilings, Vaulted Ceiling(s), Interior Steps, Multiple Living Areas, Primary Bedroom on Main
Sewer
Public Sewer
Substructure
Slab
Disability Features
None
Other Exterior Features
See Remarks, Uncovered Courtyard, Dog Run, Gutters Partial, Private Yard
Elementary School
Casis
Middle School
O Henry
High School
Austin
School District
Austin ISD
Price Upon Request

Downloads

2616 Jefferson ST # A

Schedule a Tour

We would love to help you see this beautiful home! As a full-service brokerage, we can help you tour. Please submit an offer, and answer questions about the buying process.

Thank you

for your interest in 2616 Jefferson ST # A, Austin, TX 78703

2616 Jefferson ST # A
Navigate
Austin

Explore Austin

read more
2616 Jefferson ST # A
explore in 3d

I'm Interested In

2616 Jefferson ST # A

or
  • CallBryan Cady

    License #526188

    (512) 731-7489
  • Follow Us On Instagram